Офис компании "BERGAUF"

Площадь: 94 кв.м.
Год реализации: 2023
г. Казань
Дизайн-проект офиса для Bergauf в Казани на 94 кв.м. - это воплощение современной визии компании. Вся концепция построена на фирменных цветах, внедрении передовых технологий и соблюдении эргономических стандартов.

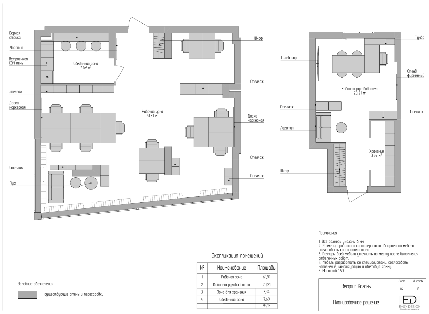
Пространство организовано с учетом разделения на функциональные зоны. Общий зал преобразован в комфортную зону приема пищи, уютную зону отдыха и просторный рабочий кабинет. Каждое рабочее место спроектировано с учетом нормативов и эргономики, обеспечивая идеальные условия для продуктивной работы.

Особое внимание уделено кабинету руководителя, который стал воплощением корпоративного стиля. В нем создано атмосферное пространство для конфиденциальных обсуждений и принятия стратегических решений.

Каждая деталь, начиная от мебели до освещения, спроектирована с учетом уникального фирменного стиля компании, подчеркивая ее профессионализм и статус на рынке.

Этот дизайн-проект не только отражает современные тренды в интерьерном дизайне, но и подчеркивает важность аспектов эргономики и функциональности рабочего пространства. Стремление к качеству и внимание к деталям делают это пространство идеальным местом для работы и вдохновения.

ХОЧУ ТАК ЖЕ!
консультация не обязывает Вас заказать дизайн-проект интерьера и возможна на любом этапе покупки квартиры или ремонта