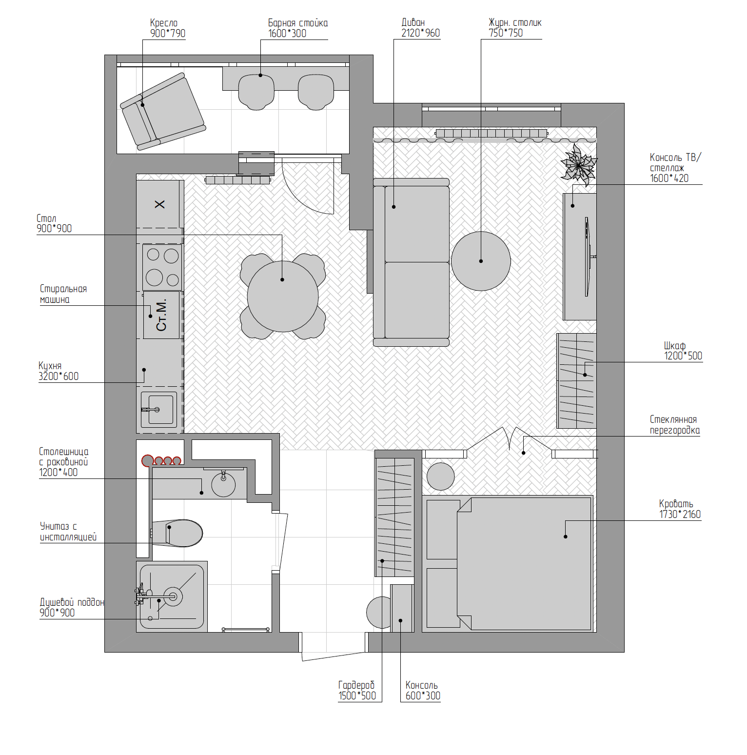
1-комнатная квартира

Площадь: 36,5 кв.м.
Год реализации: 2023
г. Краснодар
Уникальный дизайн-проект 1-комнатной квартиры в Краснодаре для сдачи в долгосрочную аренду. Проект созданный удаленно. Наша задача - превратить пространство в место, где простота и качество сочетаются с уникальным стилем. Мы использовали доступные и надежные отделочные материалы, внесли интересные дизайнерские решения и добавили яркие цветовые акценты. В проекте мы воспользовались стеклоблоками для частичной перегородки между кухней и гостиной, а также стеклянной перегородкой для спальни, чтобы максимально использовать естественный свет. Результат - функциональное, стильное и просторное пространство.
ХОЧУ ТАК ЖЕ!
консультация не обязывает Вас заказать дизайн-проект интерьера и возможна на любом этапе покупки квартиры или ремонта