Частный дом

Площадь: 136 кв.м.
Год реализации: 2022
г. Екатеринбург
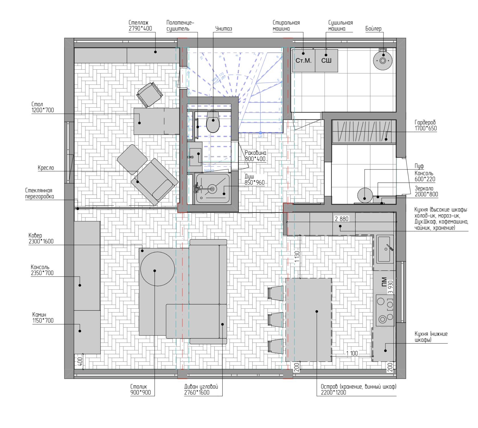
Это дизайн проект жилой площади площадью 136 квадратных метров в стиле минимализма, с использованием натуральных материалов. В гостиной находится камин, создающий атмосферу уюта. Основной цветовой палитрой являются серые оттенки, а текстуры дерева придают интерьеру естественность и теплоту. Для создания современной системы освещения были использованы инновационные решения. В итоге получился сбалансированный и функциональный интерьер.
ХОЧУ ТАК ЖЕ!
консультация не обязывает Вас заказать дизайн-проект интерьера и возможна на любом этапе покупки квартиры или ремонта