ЖК "Мечта "

Площадь: 65 кв.м.
Год реализации: 2022
г. Екатеринбург
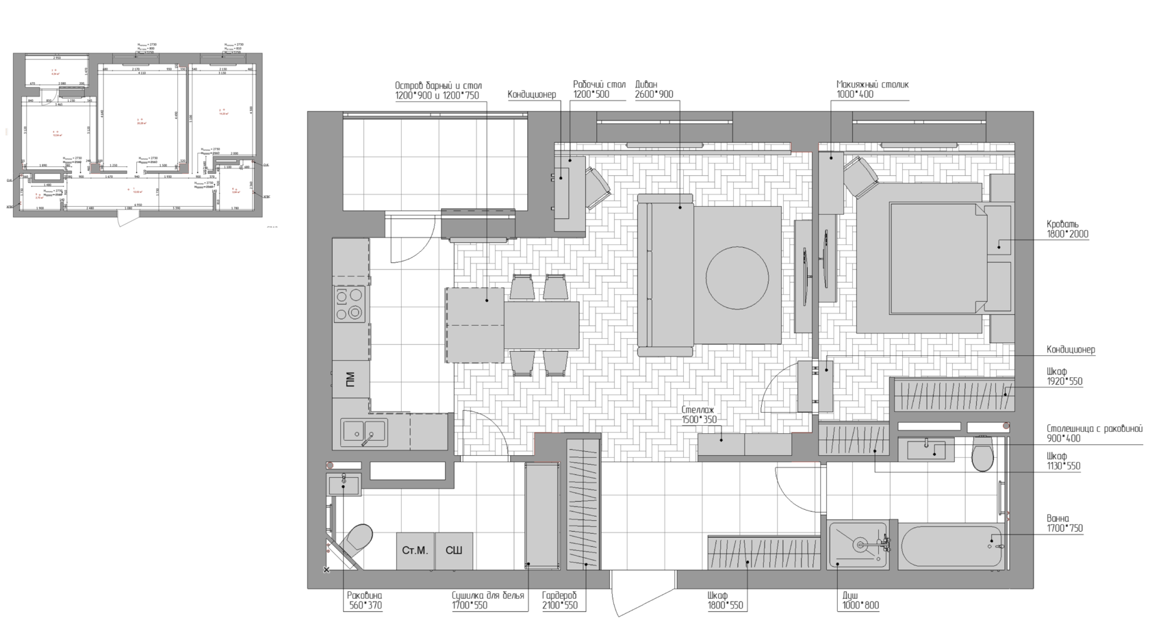
Основной недостаток квартиры — её исходная планировка (застройщик не предполагал большую гостиную).
Квартира поделена на два блока: приватный и общий , это явно прочитывается в дизайне и формирует основную архитектурную идею. В квартире предусмотрены кухня-гостиная, спальня, ванная комната, а также гостевой санузел с зоной прачечной.
ХОЧУ ТАК ЖЕ!
консультация не обязывает Вас заказать дизайн-проект интерьера и возможна на любом этапе покупки квартиры или ремонта