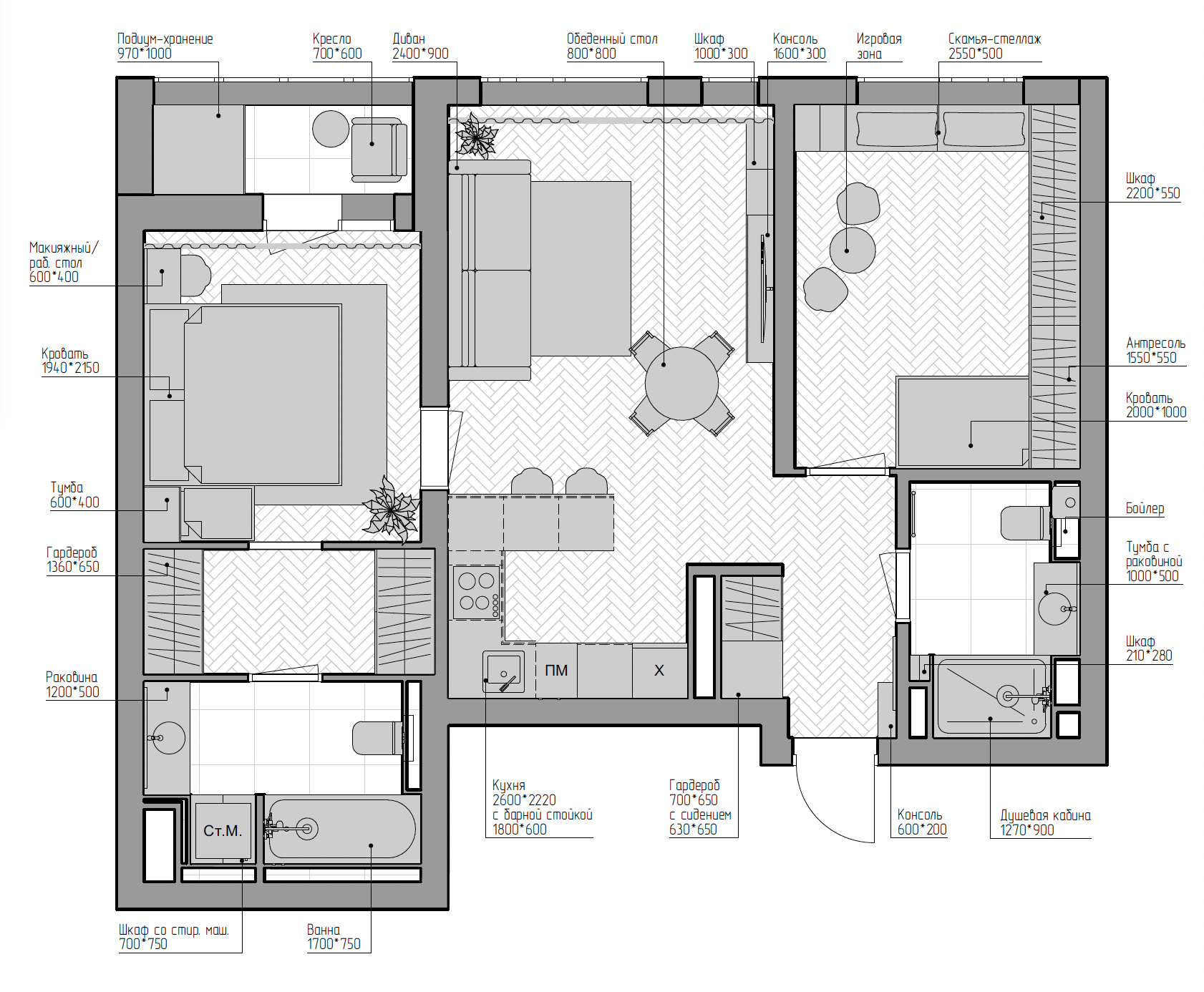
Квартал Олимпика

Площадь: 67 кв.м.
Год реализации: 2024
г. Екатеринбург (Академический р-н)
Квартира для проживания семьи с ребенком, 67 квадратов в Академическом районе г. Екатеринбурга
Этот современный и стильный интерьер площадью 67 квадратных метров идеально подходит для комфортного проживания семьи с ребенком.
Мы создали пространство, где каждая деталь продумана для удобства и уюта. Детская комната оформлена в теплых тонах и обставлена функциональной мебелью, которая подходит как для игр, так и для учебы.

ХОЧУ ТАК ЖЕ!
консультация не обязывает Вас заказать дизайн-проект интерьера и возможна на любом этапе покупки квартиры или ремонта